Skip to Content
Templar Development Logo

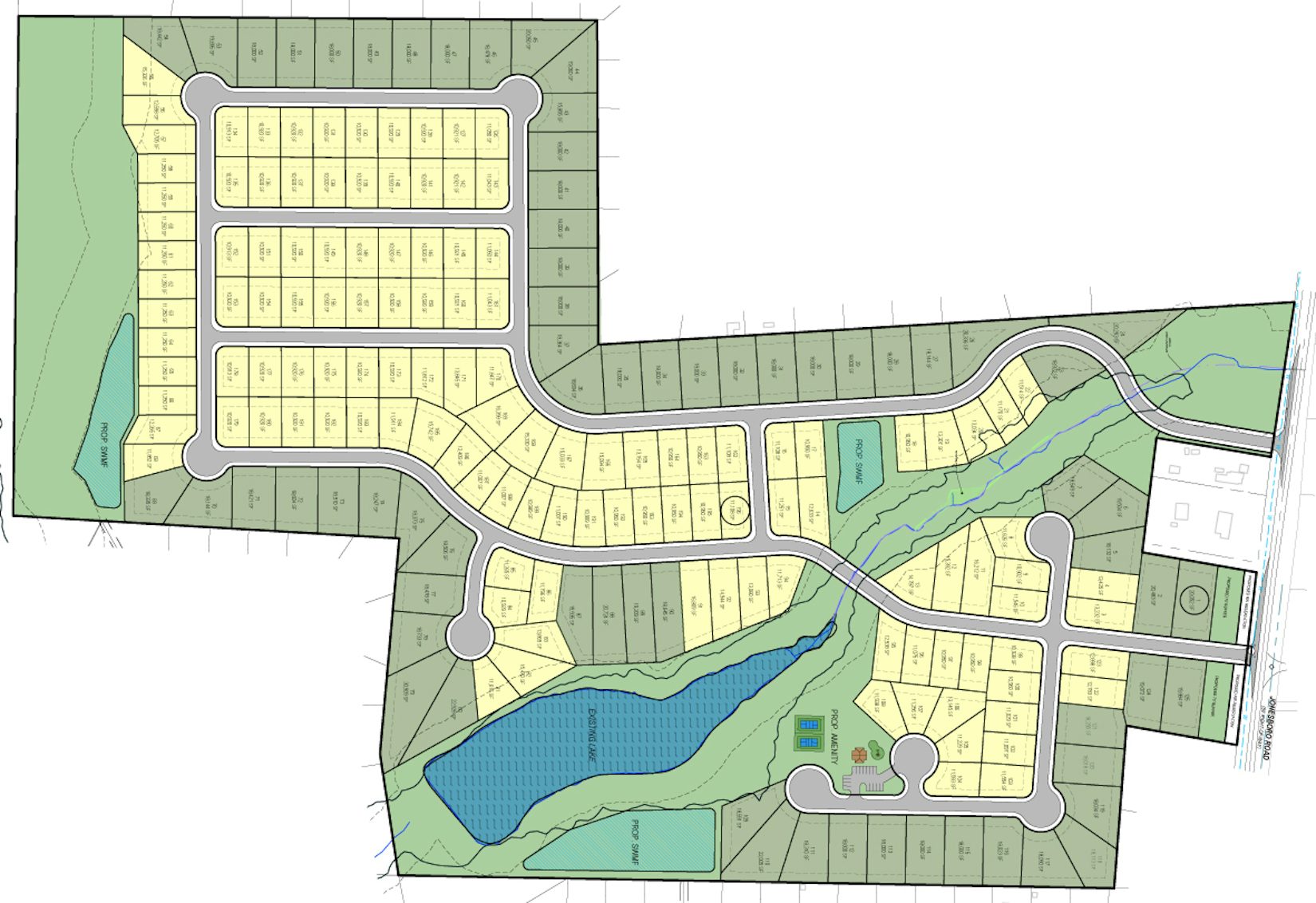
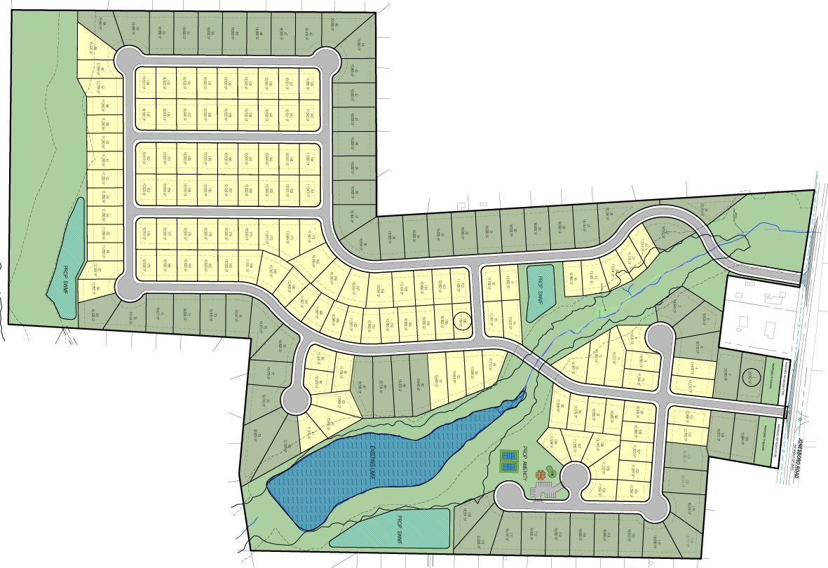
Welcome to Carlson Lake - 196 Homesites - Hampton, GA

Coming Soon

Community Site Plan

Carlson Lake - 196 Homesites - Hampton, GA - Community Site Plan